灑水車車載熱水管道泵_耐高溫管道離心泵_抽開水熱水循環泵
銷售電話:159-7276-7978
用途:
GDR型泵是管道泵的高溫型。適用于采暖、浴室、鍋爐等給排水以及各工藝流程的冷熱水循環。輸送介質:
主要供吸送稀釋的、清潔的、不腐蝕的、不爆炸的清水及物理化學性質類似水不含固體顆粒或纖維的液體。
全系列產品按輸送介質溫度分成兩類(具體型號見性能表),一類不大于120℃,另一類不大于185℃。
最高使用溫度185℃的泵必須配防爆電機可輸送易燃易爆的輕質量油。

最高使用溫度最大吸入壓力:0.3MPa-0.5MPa
材質:HT200鑄鐵
最大耐溫:130℃
介質密度:P=1000kg/m3
泵說明:
進出水口處于同一軸線,而且口徑相同,可以象閥門一樣裝在管路上。上開蓋式結構,拆開泵蓋和葉輪時不需拆卸吸進和排出管路即可更換密封和葉輪。
旋轉方向:
從電機往泵方向看,水泵為順時針方向旋轉。

電動機配用特別設計的Y型加長軸立式電機,電動機在尺寸上和功率等級上符合IEC和DIN42673標準,運行平穩、安裝方便。輸送冷熱易燃易爆石油制品,應配用防爆電機。
產品執行標準:GB/T 16907
生產許可證號:(粵)XK06-003-00015
用途:
GDR型泵是管道泵的高溫型,適用于采暖、浴室、鍋爐等給排水以及各工藝流程的冷熱水循環。

主要供輸送稀釋的、清潔的、不腐蝕的、不爆炸的清水
物理化學性質類似水不含固體顆;蚶w維的液體。
全系列產品輸送介質溫度不大于120℃。
工作條件:
進出水口處于同一軸線,而且口徑相同,可以像閥門一樣裝在管路上。上開蓋式結構,拆開泵蓋和葉輪時不需拆卸吸進和排出管路即可更換密封和葉輪。
旋轉方向:
從電機往泵方向看,水泵為順時針方向旋轉。

電動機配用特別設計的加長軸立式電機,電動機在尺寸上和功率等級上符合IEC和DIN42673標準,運行平穩、安裝方便。
輸送冷熱易燃易爆石油制品,應配用防爆電機。
型號意義說明:
熱水泵結構圖:

性能表:


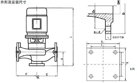
外形及安裝尺寸:

①安裝時管路重量不應加在泵上,以免使泵變。
②泵與電機是整體結構,安裝時無需找正,所以安裝十分方使。
③當輸送高溫液體時為了不使泵承受管路的熱變形,泵座的底腳螺栓不應固定,當管路系統在熱脹冷縮時,使泵能與管路一起移動。
④為了防止雜物進入泵內,應在泵進口前面安裝比吸入管截面積大3-4倍過濾器。
起動和停車
起動前準備:
①試驗電機轉向是否正確,從電機頂部往泵看為順時針旋轉,試驗時間要短,每次不應超過10秒,以免機械密封干磨擦。
② 灌液:打開排氣閥將所輸送液體灌滿吸入口管路及泵內,若是閉式回路應將液體灌滿整個管路系統,以驅除系統內空氣。灌滿后關閉排氣閥。
③用手盤動泵以使潤滑液體進入機械密封端面內。
起動:
①關閉吐出管路閥門。
②起動電機,觀察泵運轉是否正常,吐出管閥門時間不得超過3分鐘。
③輸送高溫液體時應對泵進行 預熱,把輸送液體逐漸升溫不斷循環來達到,升溫速度應小于5℃/分。
④調節出口閥門到所需工況。
⑤檢查軸封泄漏情況,正常時機械密封泄漏量應小于3滴/分。
⑥檢查電機,軸承體處溫升≤70℃。
停車:
①降溫,降溫速度<10℃/分,把溫度降低到80℃以下才能停車。
②關閉吐出管路閥門。
③停止電機。
④如果長期停車,或停車后溫度在3℃以下,應將泵內液體放盡。
⑤安裝后拔動泵軸,葉輪應無磨擦聲卡死現象,否則應將泵拆開檢查原因。
⑥重新組裝泵時不應讓雜物掉入配合面內,并檢查泵葉輪口環處的同心度≤0.1mm。
泵的維修:
1.運行中的維護:
①吸入管路必須充滿液體,禁止泵在汽蝕狀態下長期運行。
②定時檢查電機電流值,不得超過電機額定電流。
③輸送高溫度液體時產格遵守升溫及降溫速度,以防止熱沖擊,保護泵及管路各密封面、防止高溫液體噴出傷人。
④泵經過長時間運行后,由于機械磨損,使機組噪音及振動增大時,應停機檢查:葉輪口環間隙應≤1毫米,不同心度應≤0.2毫米,否則應更換易損零件及軸承,機組大修期一般為一年。
2.機械密封維護:
① 機械密封潤液應清潔無固體顆粒。
② 嚴禁機械密封在干磨情況下工作。
③ 起動前應先盤動泵(電機)幾圈,以免突然起動造成石墨環斷裂損壞。
④當密封泄漏量超過3滴/分時,在一周內仍無下降趨勢,則應停機檢修。
⑤本泵使用的機械密封的密封腔壓力≤0.8Mpa。
拆卸:
1、拆下管路系統。
2、折下泵體,擰開葉輪螺母(右旋)取下葉輪。
3、把葉輪卸下后再拆密封。卸機械密封時應注意:
①不能用手錘及鐵器敲擊,以免損壞動靜環。
②如果有污垢堆積折不下來,應清洗干凈后拆卸。
動靜環端面應用冷油及脫脂棉洗干凈。
③密封端面不應有明顯擦傷、裂紋、碰傷等缺陷,如有缺陷應修復或更換新的。
④配置時應在封面涂上清潔油脂。
故障原因及排除方法:

銷售電話:159-7276-7978


